Mon approche
Rencontre d’humains, écoute des besoins, des désirs, découverte du lieu qui accueillera le projet, l’analyser, le comprendre avant de dessiner car un projet nait de la richesse du contexte dans lequel il s’inscrit.
A propos de moi
Architecte DPLG
Architecte DPLG depuis plus de vingt ans, j’ai consacré plus de dix ans à concevoir des logements collectifs et des équipements à plus ou moins grande échelle que ce soit pour une clientèle privée ou publique au sein d’une agence d’architecture à la Réunion, me permettant ainsi de développer mon expérience sur diverses typologies de projet.
Aujourd’hui installée dans le centre historique d’Agde, j’ai choisi de recentrer mon métier sur ce qui m’anime profondément : l’humain et la relation direct avec le futur habitant ou utilisateur de l’espace en devenir.
Pourquoi se préocuper de son habitat ou de son lieu de travail ?
Parce qu’un logement ou un lieu de travail est un refuge, le nid dans lequel nous passons une bonne partie de notre vie et dans lequel nous venons chercher les bonnes conditions pour être pleinement disponible à ce que faisons.
Parce que concevoir un projet, ne se résume pas à une juxtaposition de pièces et de fonctions. Concevoir un projet c’est créer des espaces qui vous ressemblent en prenant en compte une multitude de paramètres ( environnement, climat, végétation, budget, matériaux, façon de vivre, de travailler, ..) .
Parce que d’investir dans un projet de construction ou de rénovation a un coût, il est donc important de prendre le temps d’y réfléchir et d’avancer pas à pas.
Les étapes d'un projet
Chaque projet est une histoire, une rencontre avec ceux qui vont y déposer leurs rêves, leurs routines, leurs émotions. Un projet ne se résume pas à une simple juxtaposition de fonctions parachutées sur un terrain ou dans un bâtiment existant en cas de rénovation. Tout comme chaque personne, chaque lieu est unique, a son histoire et son vécu. Une bonne compréhension du contexte est nécessaire afin de pouvoir proposer la meilleure adéquation entre les besoins de l’usager, le bâtiment et son lien avec l’environnement dans lequel il s’inscrit.
Rencontre et compréhension des besoins
Objectif : Comprendre vos attentes, vos contraintes et vos aspirations.
Actions :
- Échange approfondi avec vous (mode de vie, besoins, budget, délais)
- Visite du site (topographie, environnement, réglementation local)
- Identification des enjeux (familiaux, écologiques, économiques)
Mission esquisse, avant projet, permis de construire
Esquisse (ESQ)
Objectif : vous proposer une ou deux visions créatives et fonctionnelles du projet. Cette étude vous permet de valider vos choix de vie, de vous projeter dans votre habitat de demain et de réaliser l’étendue des travaux à réaliser en cas de rénovation.
Avant-projet (AVP)
Objectif : Affiner le projet en projet sommaire puis définitif en prenant en compte vos retours, en précisant les matériaux et les systèmes constructifs tout en prenant en compte votre budget pour obtenir un accord définitif avant les démarches administratives.:
Dépôt des demandes administratives (PC)
Objectif : Constitution du Dossier de demande des autorisations légales pour construire ou aménager et suivi des échanges avec les services instructeurs.
Mission de conception et travaux
Projet de conception général (PCG)
Objectif : Réaliser un dossier représentant l’ensemble des éléments nécessaires à la bonne compréhension, par les entreprises, des techniques et matériaux à mettre en œuvre
Consultation des entreprises et préparation des marchés (DCE + MDT)
Objectif : Préparer le dossier d’appel d’offre composé de pièces écrites et graphique et vous accompagner dans la sélection des entreprises jusqu’à la signature des marchés de travaux.
Le Chantier jusqu’à la livraison ( VISA – DET – AOR)
Objectif : Parce qu’il constitue un moment important et parfois inquiétant pour vous, le chantier est préparé et dirigé avec méthode et rigueur jusqu’à la réception des ouvrages.
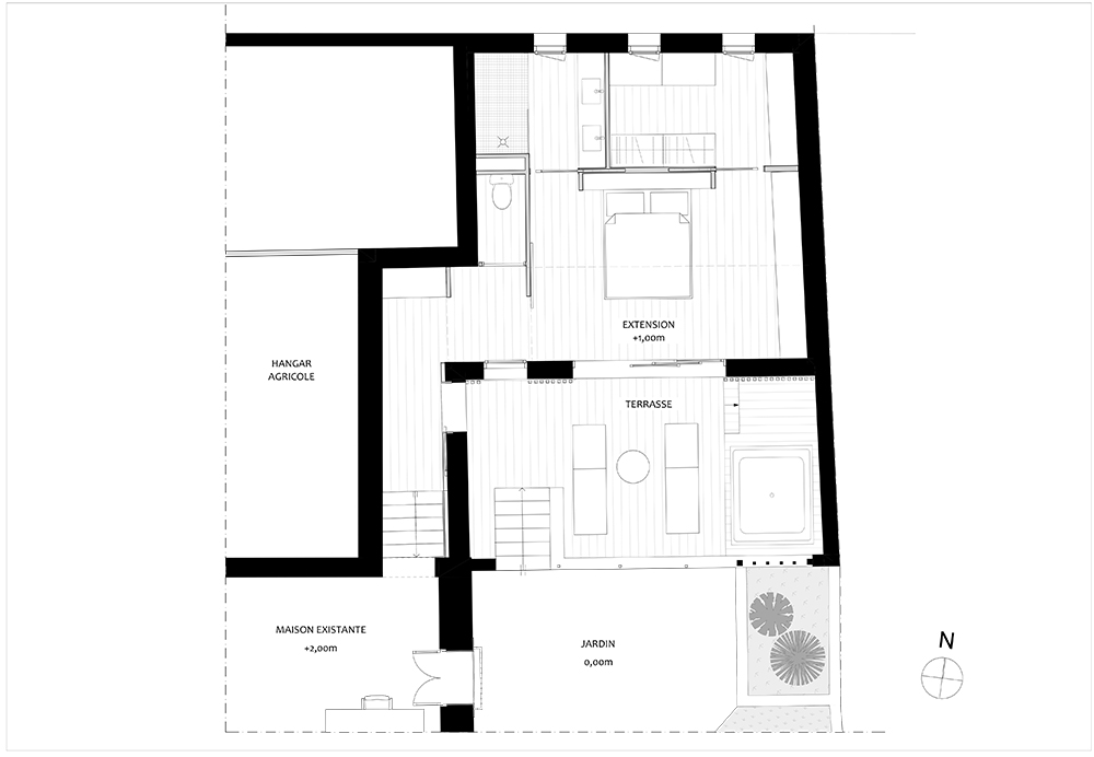
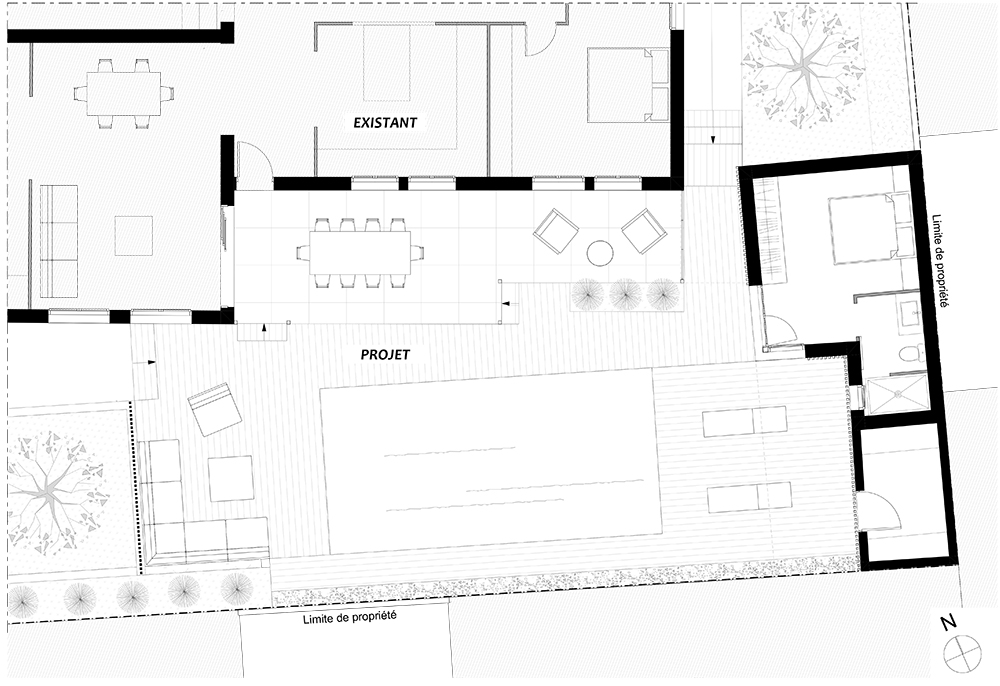
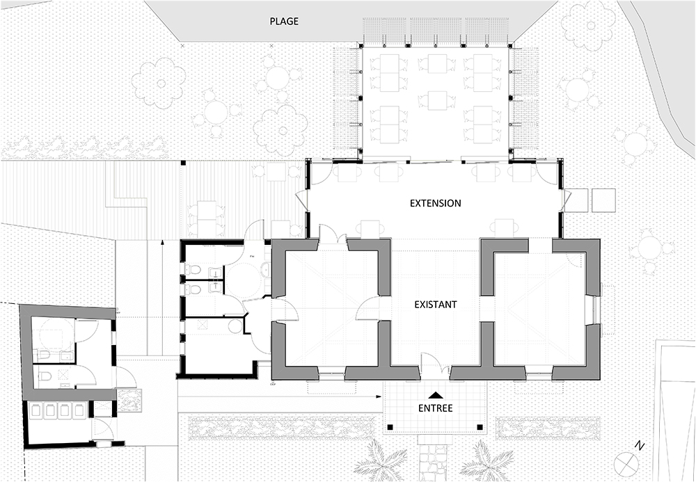
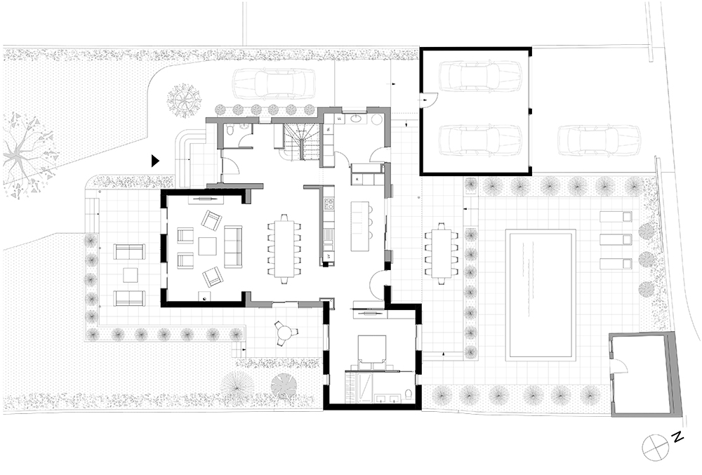
Quelques projets









